5 Images
5 Images
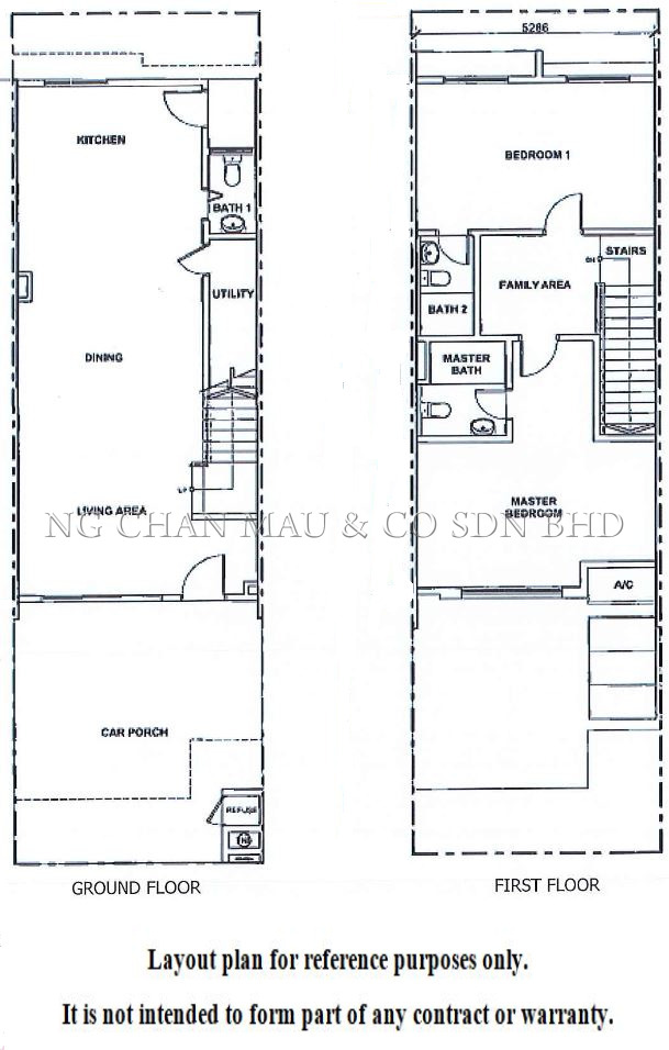
2 Storey Link House, Intermediate

Bumi Lot
Property Address
No. 25, Jalan CG 1/1C, Casa Green, Cybersouth, 43800 Dengkil, Selangor
Land Area
Approx. 1,173 sq.ft
Reserve Price
RM 500,000.00 (Approx. RM 426 per sq.ft)
Check monthly installment
Deposit
10% of Reserve Price (Auction Deposit, if made via online transfer, must be deposited directly into our company's bidder deposit account only. We have not authorised any 3rd party to receive the same on our behalf.)
  • 3 min to UiTM Dengkil Campus
Auction Details

Reference No.
NCM/HSBC/58232
Plaintiff / Assignee
HSBC Amanah Malaysia Berhad
Defendant / Assignor
Auction Date & Time
26th November 2025, Wednesday, 10:30 AM
(Counter Registration closed at 10:15 AM)
Auction Venue
Ng Chan Mau Auction Room
No. 7, Ground Level, Block B, Megan Avenue II, No. 12, Jalan Yap Kwan Seng, 50450 Kuala Lumpur
Guides to
Online Bidding
Step by Step Guides to Bid Online
Outstanding
Arrears
Check for this Property
Location of this property

To view, please Login
Why buy Casa Green, Cybersouth

Casa Green @ Cybersouth is a Leasehold landed property located in Cybersouth, Dengkil. It is developed by Avaland Berhad and it was completed in 2018.

Casa Green comes with 2 storey building which comprises a total of 418 units. The built-up size of the unit measures approximately 1,545-1,913 sq ft in size.

Casa Green provides facilities such as 24-hour security, playground & jogging track.

Casa Green is near to amenities such as shopping mall (DPULZE Shopping Centre & Tamarind Square), educational institutions(SK Dengkil, SK Bukit Tampoi (Asli), SMK Dengkil, ELC International School & UiTM Dengkil).

Casa Green is easily accessible via Persiaran CyberSouth 1, Jalan Baru, Pintasan Dengkil Bypass, Putrajaya-Cyberjaya Highway, Persiaran Selatan & ELITE Highway.

Also located nearby SplashMania WaterPark & Melaka Wonderland Theme Park & Resort.

Quick Facts
Name: Casa Green
Tenure: Leasehold
Type: Terrace House
Address: Cybersouth, Dengkil
Developer: Avaland Berhad
Year Of Completion: 2018
No. of Storey: 2
Total Unit: 418
Built-Up size: 1,545-1,913 sq ft
Loan Calculator

Down Payment
10%

RM 1,885.97
per month
RM
RM
%
Years
Loan Margin 90% 80% 70%
Loan Term 35 Years 35 Years 35 Years
Interest Rate 3.6% 3.6% 3.6%
Down Payment 10% 20% 30%
Loan Amount RM 450,000.00 RM 400,000.00 RM 350,000.00
Estimated Monthly Installment RM 1,885.97 RM 1,676.42 RM 1,466.87
Note
  • For intending bidders, please call our hotline for latest auction status as auction may be withdrawn / called off at last minute.
  • Intending bidders are advised to obtain a copy of the Proclamation of Sale before participating the auction.
  • The photographs shown herein are solely for general identification and information. 
Bidder Support
We have more details about this property. Chat with our Sales Advisor now - it's free.
Bidder Support
Bidder Support

Submit Enquiry

This property listed is put up for sale by way of auction. Feel free to contact us for free assistance.

Whatsapp us now
* Mandatory field
Find Property for Auction

You may also check other available auctions below:

2 Storey Linked House, End Lot
RM 720,000
2 Storey Linked House, End Lot
Jalan CV 1/2C, Casa View, Cybersouth, 43800 Dengkil, Selangor
To be auctioned in 5 days
Land Area: 1,754 sq.ft
RM 410 psf.
Town House
RM 350,000
Town House
Jalan KB 5, Kita Bayu, Cybersouth, 43800 Dengkil, Selangor
To be auctioned in 17 days
Built Up: 1,104 sq.ft
RM 317 psf.
Town House
-35%
RM 247,000
Town House
Jalan KM 23, Kita Mekar Cybersouth, 43800 Dengkil, Selangor
To be auctioned in 17 days
Built Up: 920 sq.ft
RM 268 psf.
Town House (Lower Unit)
RM 370,000
Town House (Lower Unit)
Jalan KB 11, Kita Bayu, Cybersouth, 43800 Dengkil, Selangor
To be auctioned in 17 days
Built Up: 920 sq.ft
3 RM 402 psf.
We have more details about this property. Chat with our Sales Advisor now - it's free.
No, thanks.
Bidder Support